Ubicación: Pekín, CH
Año: 2018 ~ 2020
Tipo: Encargo
Estado: Completado
Área: 350 m2
Arquitectos: Manuel Navarro Zornoza + NSAAA
Equipo: Juan Carlos Martínez Medina
Fotógrafo: Hector Peinador
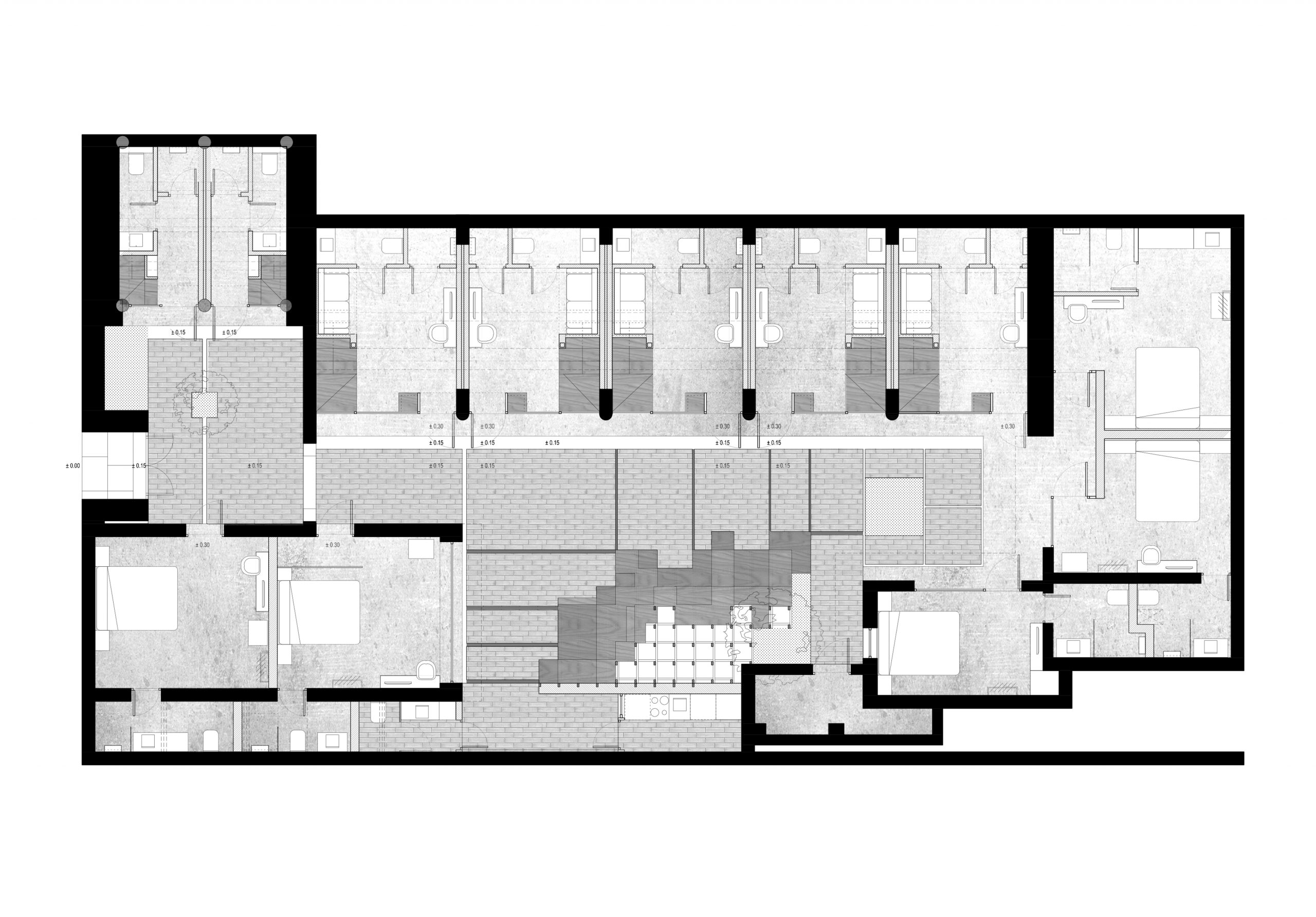
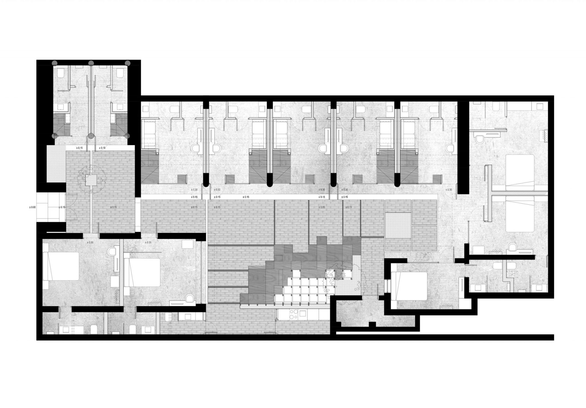
Reutilizar estructuras existentes, diseñar pensando en una economía circular de materiales, y respetar la cultura e identidad de cada lugar, son, sin duda, asuntos que nos conciernen como arquitectos y fundamentan el diseño de esta intervención.
La estructura existente está ubicada en el centro histórico de la ciudad. Se compone de un solo nivel en planta rectangular de 350 m2, de los cuales 105m2 son utilizados como patio abierto al cielo.












